
Wellistower
Master Semester 4 - Focus Project Energy- 2022
Einzelarbeit unter Prof. Annika Seifert
Der Entwurf meines zweiten Erasmus-Semesters fand im Rahmen eines bereits gewonnenen öffentlichen Wettbewerbs statt. Das "Wellisareal" war ein städtebaulicher Entwurf von Herzog & de Meuron, der ein bestehendes Industriegebiet in eine bedeutsame Wohnsiedlung und ein städtebauliches Verbindungsstück zwischen Bahnhof und Dorf umgestalten sollte. Der Standort war mit Lagerhallen, einzelnen Einfamilienhäusern und einem markanten Betonturm versehen. Im Entwurf von Herzog & de Meuron sollte der Turm abgerissen und ein ähnlicher Baukörper etwa 7 Meter versetzt neu errichtet werden.
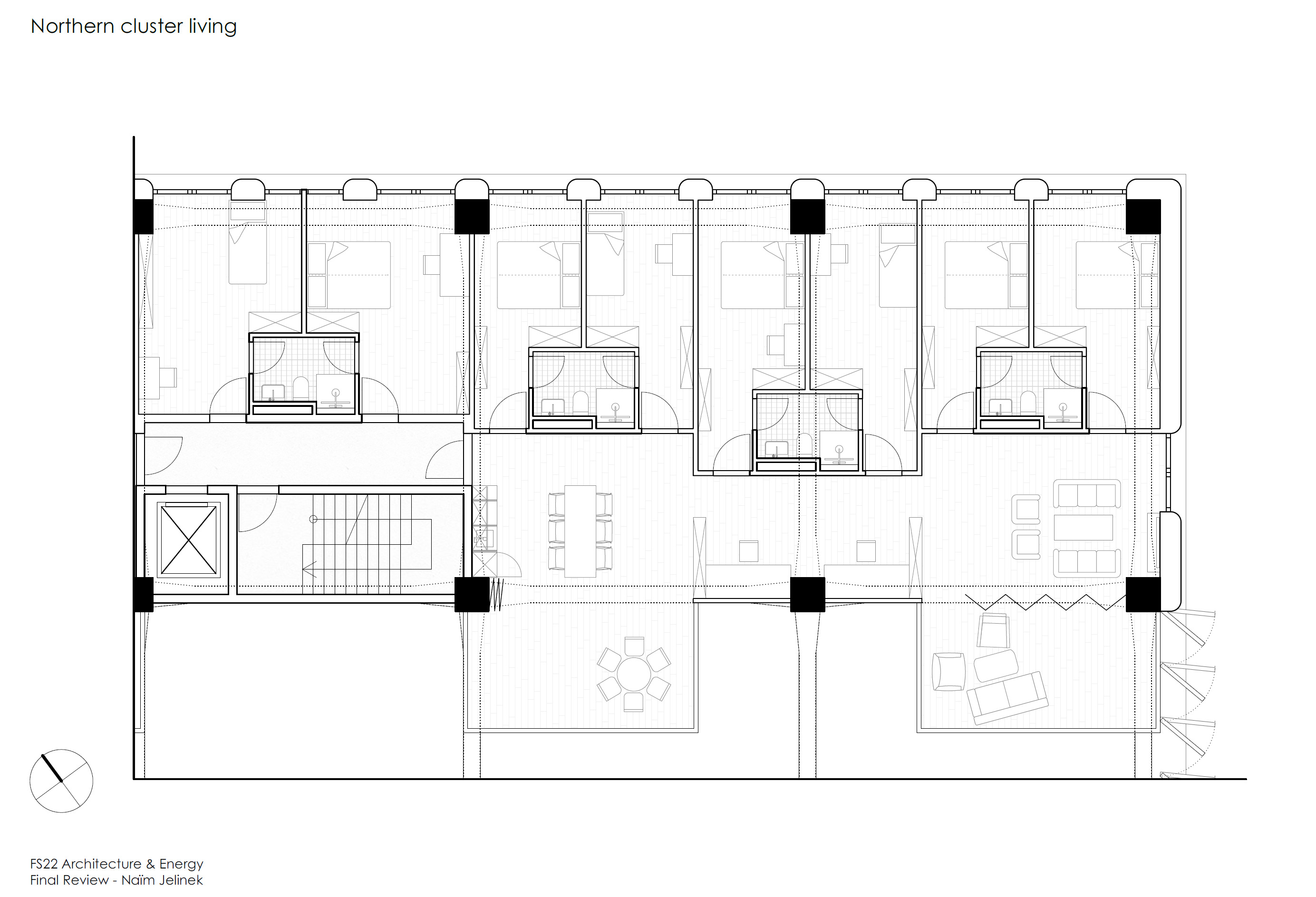
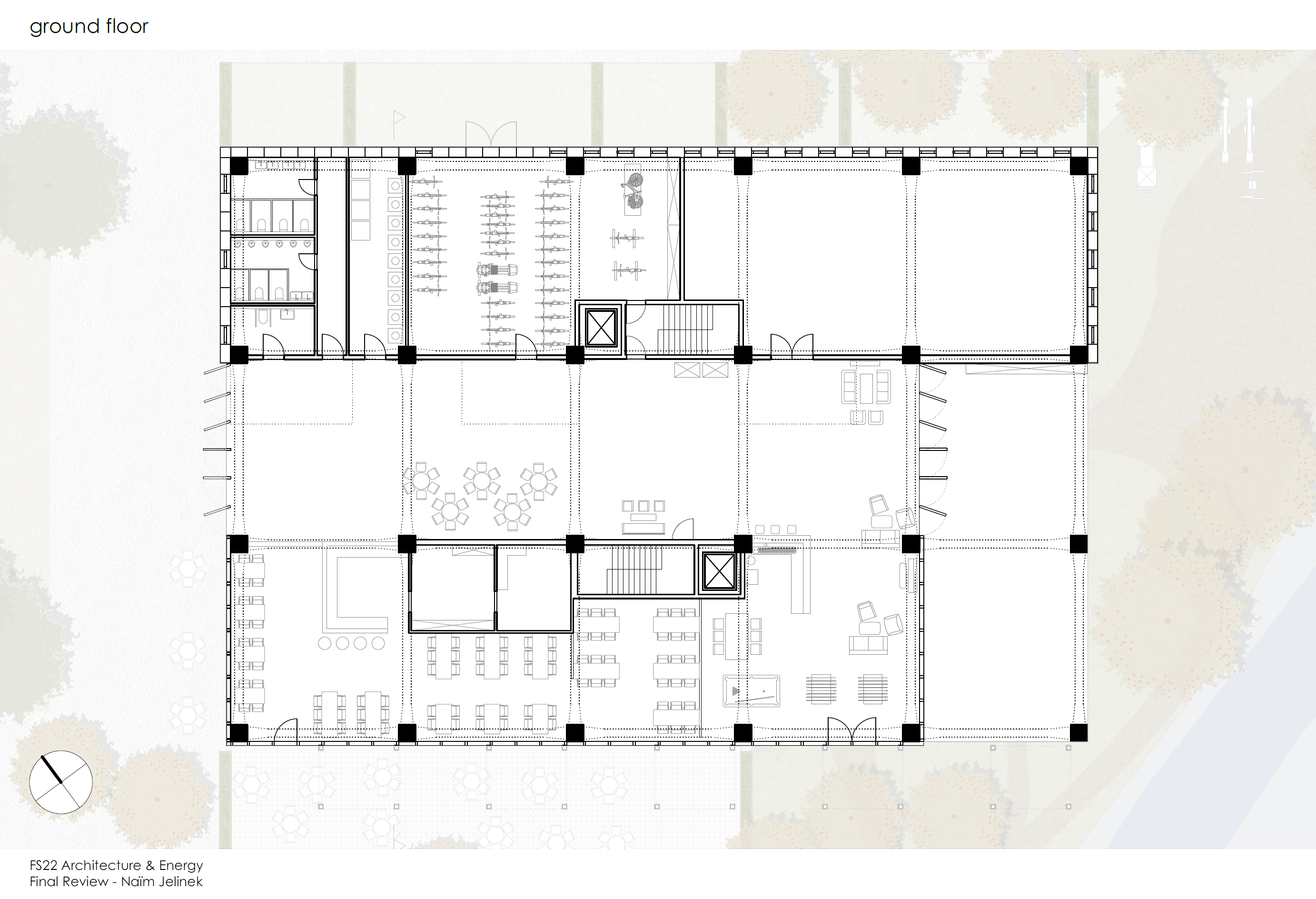
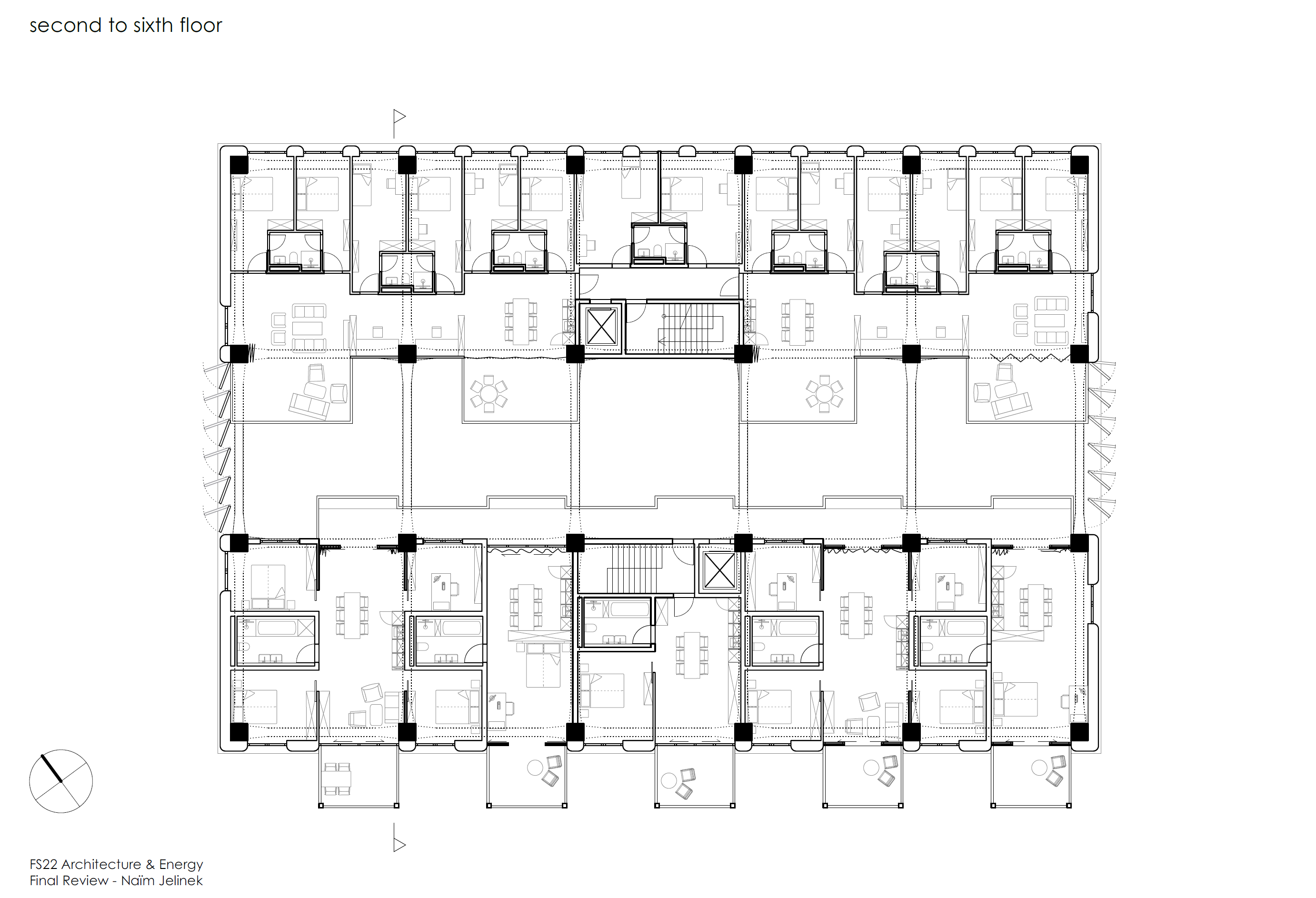
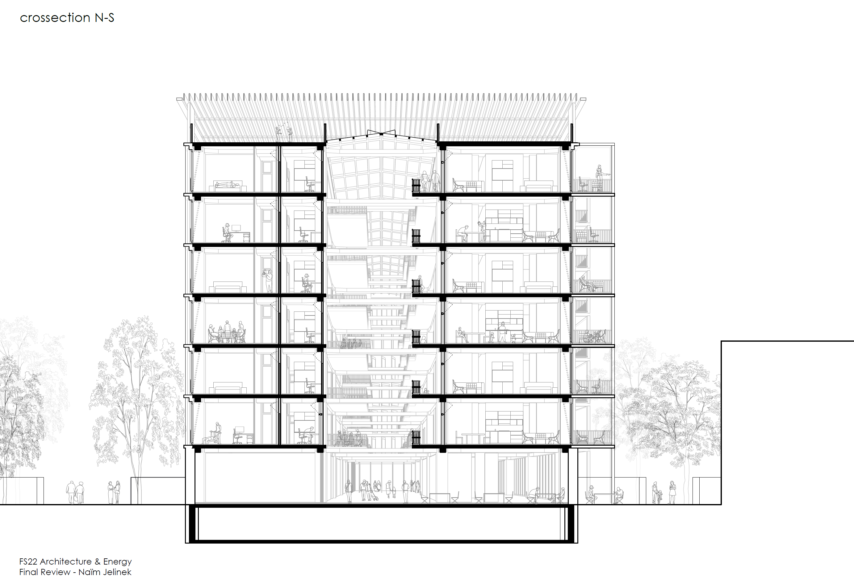
Unser Projekt befasste sich mit der möglichen Erhaltung dieses Betonturms. Passend zum Thema des Semesterentwurfs sollte Energie gespart werden, indem der Bestand weiter genutzt wird. Dies bedeutete, dass der Turm, der bisher nur als Lagerhalle verwendet wurde, in ein Wohnprojekt umgewandelt werden sollte. Die Aufgabenstellung war äußerst anspruchsvoll: Ein 27 Meter tiefer Block sollte zu einem Wohngebäude werden, was eigentlich ausschließt, dass jeder Wohngrundriss genügend natürliches Licht erhält. Zudem sollten alle Studierenden ein präzise geplantes Energiekonzept nachweisen.
Für meinen Entwurf des Turms habe ich die mittlere der drei Achsen des Turms herausgenommen, um somit zwei normalbreite Wohnhäuser zu imitieren. Dieser Einschnitt bringt sowohl Licht in das Gebäude, als auch passt sich dem Konzept von Herzog & de Meuron an, die in ihrem Entwurf längliche Riegel ähnlicher Breite entlang der Verbindungsachsen zum Bahnhof geplant haben.
Der Einschnitt wurde auch in das Energiekonzept integriert: Durch verschließbare Fassaden hat das Gebäude eine hohe Kontrolle über die Temperaturen. Im Sommer kann das Gebäude nachts von innen heraus abkühlen. Der schwere Beton des Bestandes nimmt die Kälte auf und speichert diese. Tagsüber kann die Fassade dann geschlossen werden und der Beton gibt seine Kälte wieder ab. Im Winter bietet die zusätzliche Fassade einen weiteren Wärmedämmschutz.
Zur Endpräsentation des Projektes war Michel Frei, ein Associé bei Herzog & de Meuron, als Gastkritiker anwesend. Er lobte vor allem die gelungene Fassadenplanung und die fleißige Ausarbeitung dieses Projekts.