
Rooftop
Master Semester 2 - Konstruktion - 2021
Gruppenarbeit unter Prof. Bernd Dahlgrün mit Diana Shtereva und Daniela Garcia Martinez
Das Projekt "Rooftop" ist ein sehr besonderes, das während der Hochphase der Corona-Pandemie in einem reinen Online-Semester entstand. Professor Dahlgrün hat das Beste aus der Situation gemacht. Da alles online stattfand, spielte es keine Rolle, ob man in Hamburg, Freiburg oder auf der anderen Seite der Welt war. Dies wurde genutzt, um einen Austausch zwischen drei Partneruniversitäten zu fördern. Die HCU Hamburg bearbeitete das gleiche Projekt wie Universitäten auf Mauritius und in Florida. Trotz der Zeitverschiebung konnten gemeinsame Korrekturen stattfinden, indem sich alle Beteiligten in einem virtuellen Raum trafen, der einem Hörsaal ähnelte. Diese Lehrmethode war einzigartig und wurde zuvor noch nie praktiziert. Jeder Gruppe wurde zusätzlich eine Virtual Reality Brille von der HCU zur Verfügung gestellt.
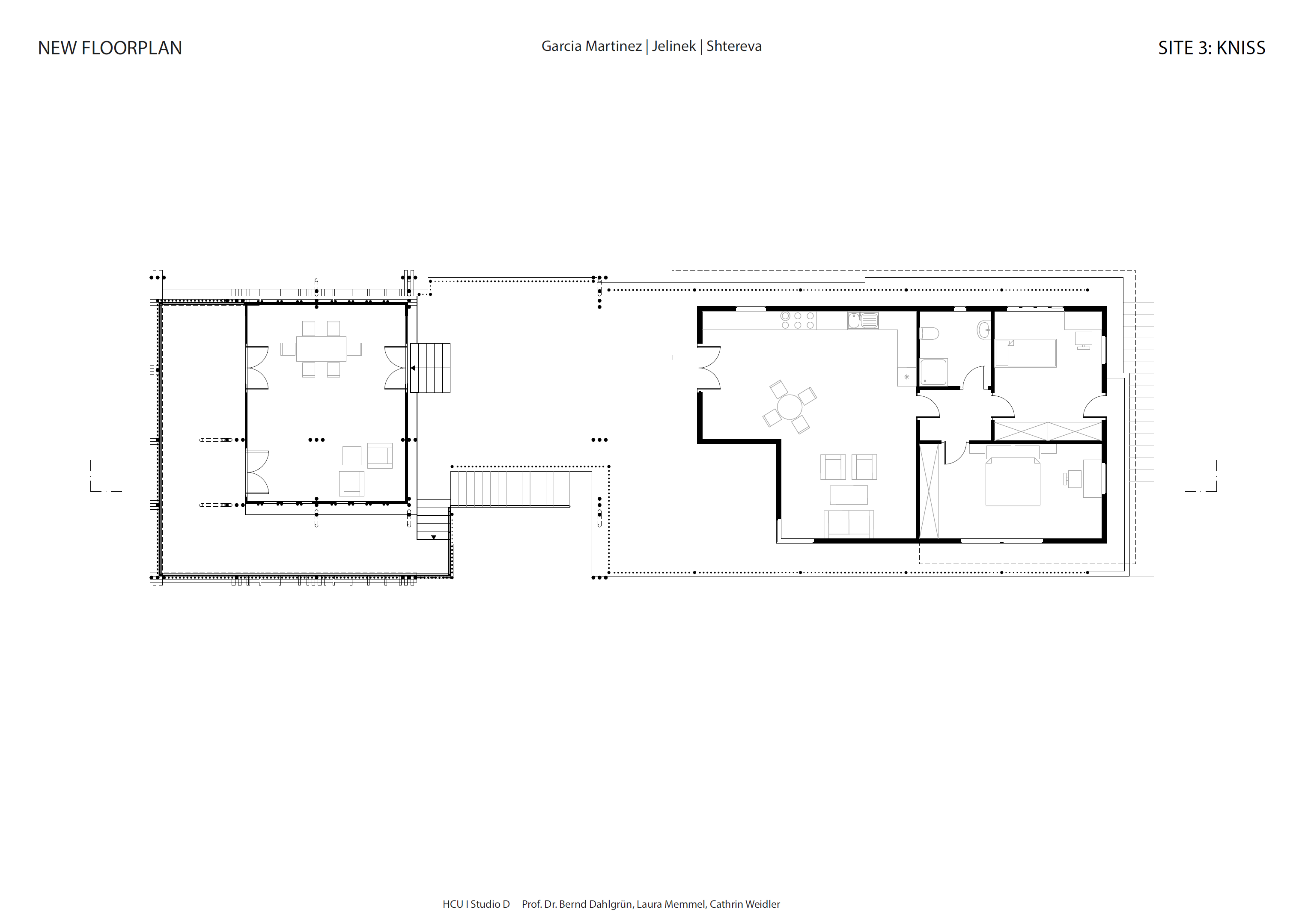
Die eigentliche Aufgabenstellung bestand darin, einen Erweiterungsbau aus Bambus zu konstruieren. Ich habe großen Respekt vor Professor Dahlgrün, dass er sich auf eine solch experimentelle Lehrmethode einließ und diese erfolgreich durchführte. Neben dem Konstruieren lernten die Studierenden auch viel über innovative Technik und Kommunikationsmethoden. Es war wirklich informativ zu sehen, wie die Studierenden aus den anderen Ländern arbeiten, und sich mit ihnen über die Projekte zu unterhalten.